CAST-CAT-ENG-FR-
Marti Miralles Arquitectes
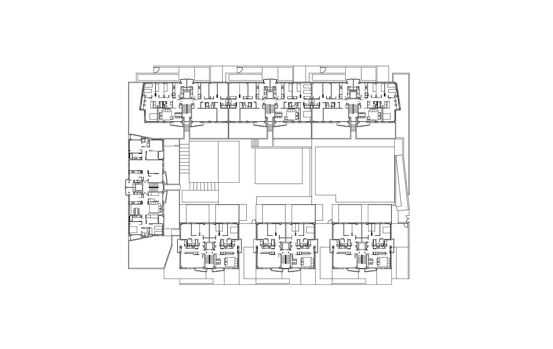
42 VIVIENDAS SOCIALES EN CERDANYOLA DEL VALLÈS 1993
FICHA
FacebookTwitter