Marti Miralles Arquitectes
PromotorPatronat Municipal de l’Habitatge de Barcelona
EmplazamientoC/ Gustau Bèquer 17-26, BARCELONA
Proyecto2010
Superficie9.076 m²
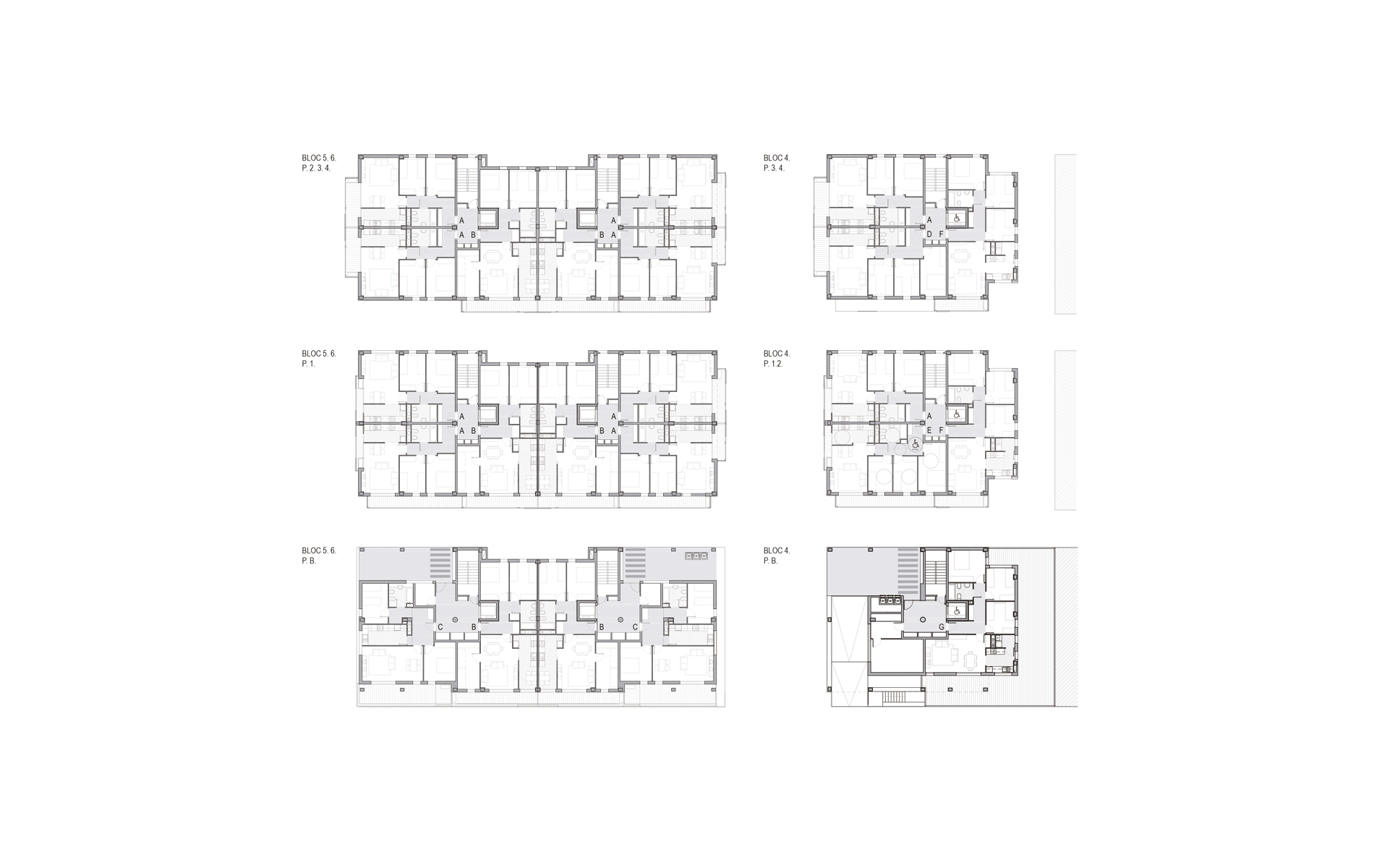
La personalidad del lugar donde se plantea esta intervención se caracteriza por la presencia de un elemento singular, el puente de Vallcarca, y por la fuerte pendiente de terreno. La ordenación urbanística y la propuesta de urbanización pretende domesticar la topografía mediante la formación de plataformas a diferentes niveles, conectadas por rampas accesibles y ordenar la edificación mediante la repetición de cinco volúmenes, en apariencia iguales, frente a la Avenida de Vallcarca.
Al actuar en sólo una parte de esta remodelación urbanística, que tiene un ámbito mayor que nuestra intervención, planteamos una propuesta de edificación que se adapta a la volumetría y ordenación planteada para todo el conjunto.
Aunque en realidad los tres edificios son diferentes para adaptarse a las exigencias de su propio entorno y a las medidas de su parcela, todos tienen el mismo aspecto y se entienden como una serie de edificios iguales.
La flexibilidad de la ordenación urbanística nos permite resolver los edificios sin ocupar toda la longitud de la parcela, lo que aprovechamos para incorporar los balcones en el perímetro edificable. Esta solución hace posible aumentar el volumen aparente de los edificios en correspondencia a la escala urbana de la Avenida de Vallcarca.
Al actuar en sólo una parte de esta remodelación urbanística, que tiene un ámbito mayor que nuestra intervención, planteamos una propuesta de edificación que se adapta a la volumetría y ordenación planteada para todo el conjunto.
Aunque en realidad los tres edificios son diferentes para adaptarse a las exigencias de su propio entorno y a las medidas de su parcela, todos tienen el mismo aspecto y se entienden como una serie de edificios iguales.
La flexibilidad de la ordenación urbanística nos permite resolver los edificios sin ocupar toda la longitud de la parcela, lo que aprovechamos para incorporar los balcones en el perímetro edificable. Esta solución hace posible aumentar el volumen aparente de los edificios en correspondencia a la escala urbana de la Avenida de Vallcarca.